Zur Zeit keine Anfragen möglich
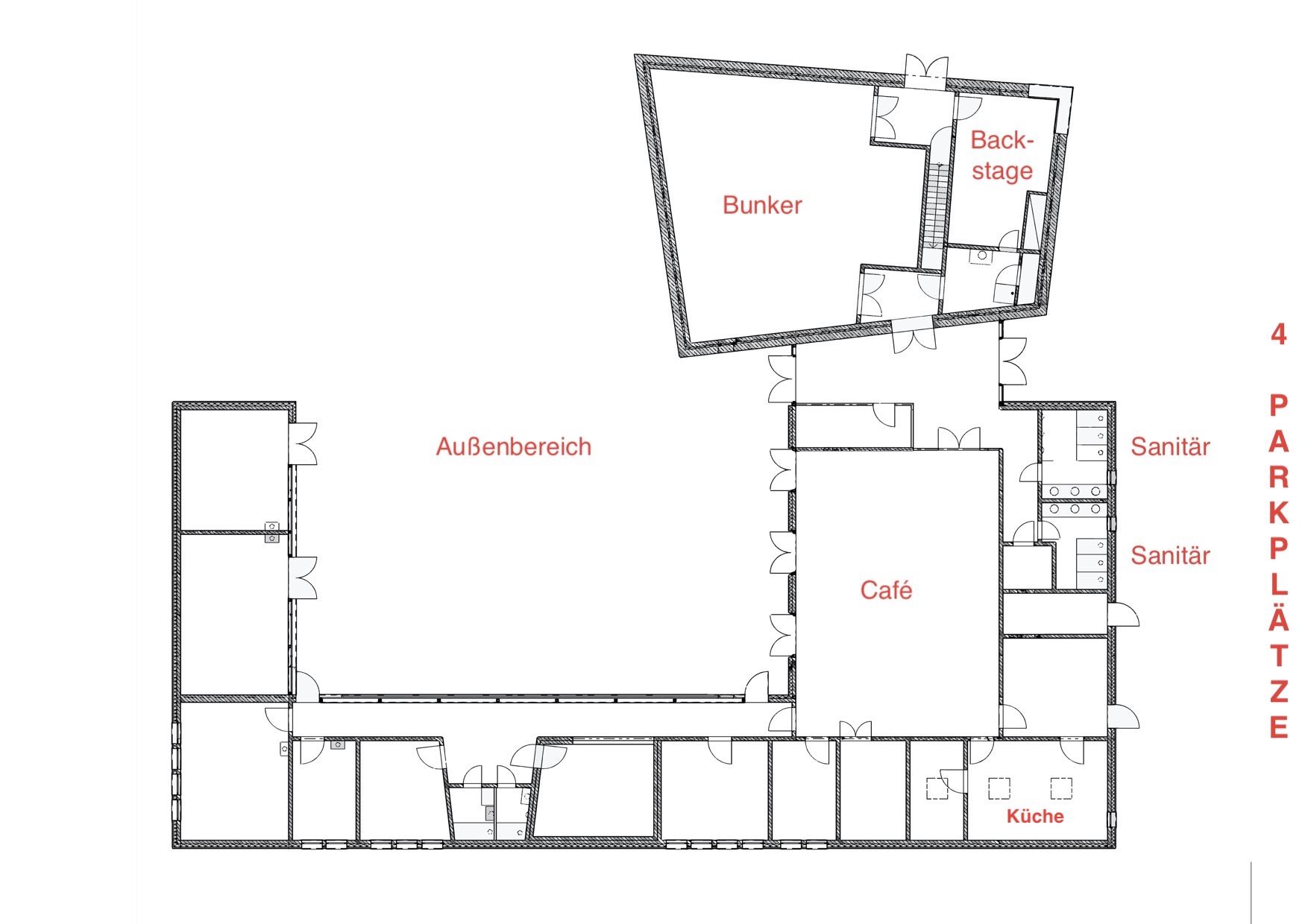
Unser Bunker wurde mit dem Ziel bestmöglicher Akustik für Live-Konzerte und elektronische Musik konzipiert. Hohe Decken, unregelmäßige Oberflächen und intelligente Absorberkonstruktionen sorgen zusammen mit unserer Seeburg G3 – Anlage für einen einzigartig klaren und druckvollen Klang. Nicht umsonst sind unsere Veranstaltungen bekannt für einen den besten Sounds der Stadt.
Für Konzerte stehen euch geschulte Techniker und ein Komplettpaket an hochwertiger Veranstaltungstechnik (Mikrofone, Kabel, Mischpult, Anlage, Beleuchtung etc.) zur Verfügung. Auch für DJs sind wir (analog wie digital) ausgerüstet. Die Bühne kann alternativ auch mit gemütlichen Couchen ausgestattet und extra beschallt zur Chillout Area o.ä. umfunktioniert werden.
Egal ob Live-Konzert, DJ-ing oder Musik aus der Konserve – 120 m2 Tanzfläche bieten genügend Platz und Freiheit zum Tanzen, und wirken durch ihren Schnitt auch bei geringerer Auslastung nicht leer. Die Bar grenzt direkt an die Tanzfläche an und hat Fass- und Flaschenbier, hausgemachte Liköre, Shots und Longdrinks, Limo und Mate für euch im Angebot.
Wir bieten euch außerdem ein speziell auf eure Veranstaltung abgestimmtes Beleuchtungs- und Dekorationskonzept an. Disco-Feeling? Techno-Bunker? Rock-Schuppen? EBM-Kerker? Wir können alles. Sprecht uns an!
Auch für Aktivitäten jenseits der Feierei kann der Bunker genutzt werden. So finden seit Jahren Sportprojekte, gestaltende Künste, Filmvorführungen und Diskussionsforen und viele weitere ihren Platz in diesem Raum, in dem man die Außenwelt für eine Weile hinten anstellen kann. Dieses Angebot richtet sich an Gruppen, Vereine, Firmen etc. im Zeitraum von 9:00 bis 17:00 Uhr.
Unser Café Kurt ist ein gemütlicher, äußerst flexibler Veranstaltungsraum. Hier ist von Chillout Romantik bis zu ausgelassener Discostimmung alles realisierbar. Die 135 m2 des Cafés (exklusive Bar, Bühne, FoH) können teilweise mit gemütlichen Sitzgelegenheiten ausgestattet oder auch in Gänze als Tanzfläche genutzt werden. Für einen Klang, der bei Tanzwütigen und Audiophilen, bei Gästen und DJs keine Wünsche offen lässt, kann unsere Meyersound CQ1 Anlage genutzt werden. Ein geschulter Techniker sowie DJ-Technik (analog und digital) stehen euch dazu zur Verfügung.
Die kleine Bühne an der Kopfseite des Raums eignet sich z.B. für‘s DJ-Pult, für kulturelle Beiträge oder auch zweckentfremdet für ein Büffet, eine Sitzecke, Tischkicker, Darts etc. Konzerte dürfen allerdings nur in unserem Bunker veranstaltet werden.
Das Café wirkt durch die großen Fensterfronten zum Hof offen und freundlich, bei Bedarf können diese aber auch abgehangen werden, um eine intimere Atmosphäre zu schaffen. Kreative Dekoration und stimmungsvolle Beleuchtung gehören zur Grundausstattung und sind mit uns individuell auf eure Veranstaltung anpassbar.
Die Bar versorgt euch gerne mit Fassbier, hausgemachten Likören, Shots, Longdrinks, Limos und Heißgetränken. Die Küche schließt sich direkt an das Café an und kann gegen Aufpreis mitgenutzt werden. Wir können auch gerne an cateringerfahrene Personen vermitteln.
Außer für Feierlichkeiten ist unser Café auch hervorragend geeignet, um kreativen Prozessen, anregender Gruppendynamik und konspirativen Zusammenkünften Raum zu geben. Dieses Angebot richtet sich an Gruppen, Vereine, Firmen etc. im Zeitraum von 9:00 bis 17:00 Uhr.
Lindenstr. 3b
18055 Rostock

